
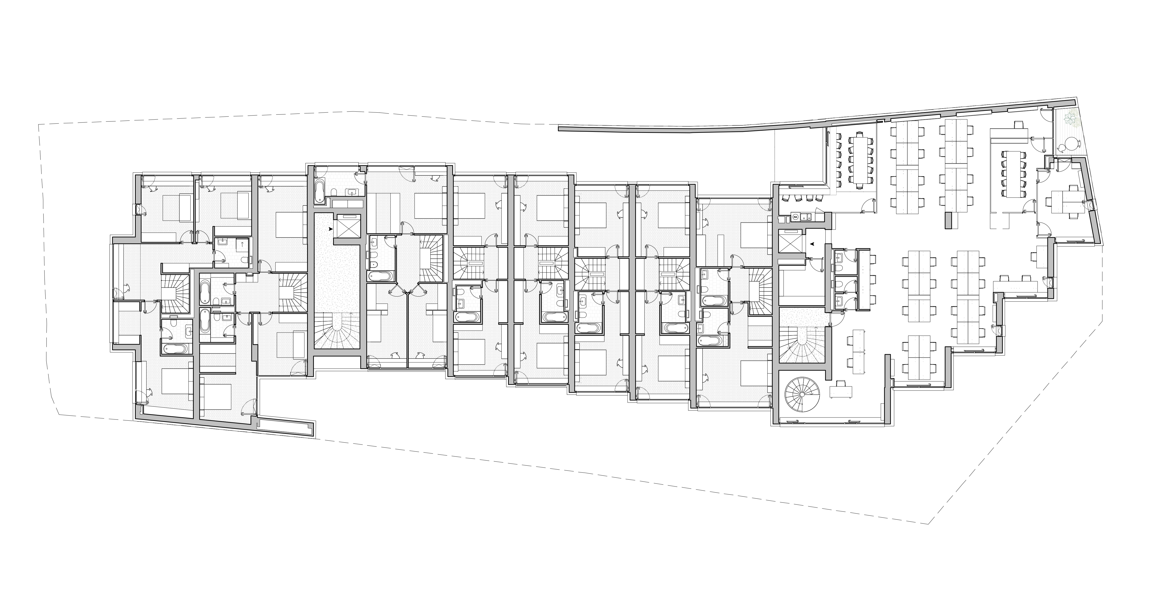
Souvenir Housing
Bucharest, Romania 
2018 - present
2018 - present
 
 
 
 
 
 
 
 
 
 
 
 
 
 
 


PROJECT TEAM:
Architects
Bogdan Brădățeanu
Adrian Untaru
Andrei Șerbescu
Pavel Albu
Valentina Țigâră
Constantin Stanciu
Andrei Carlescu
Architects
Bogdan Brădățeanu
Adrian Untaru
Andrei Șerbescu
Pavel Albu
Valentina Țigâră
Constantin Stanciu
Andrei Carlescu
Copyright © adnba 2003-2025 | Terms and Conditions         
  
	Facebook, Instagram, LinkedIn
