Europan 10
Eisenstadt, Austria
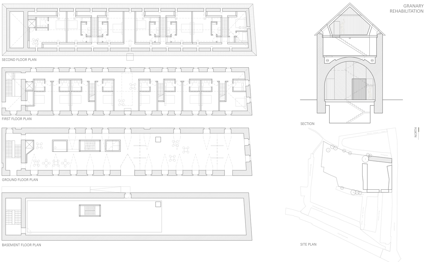
Europan 10 competition 2009, second prize
Gross area: ~4.500 m²
Inventing Urbanity, regeneration, revitalisation, colonization
Gross area: ~4.500 m²
Inventing Urbanity, regeneration, revitalisation, colonization

Any rehabilitation process should aim at re-creating the adequate
modality of reaction and reacting, which would be able to normalize, bring back
the equilibrium, be in control of the situation and, ultimately, create the
appropriate conditions for releasing the self-adjustment.
Thus, our project is not planning big gestures; it tries instead to use a
series of small-scale interventions, to search for ways of gradually bringing
back the “lost urbanity” of the place.
In Haydn’s town, the metaphor of Philemon and Baucis’ hospitality speaks of the relation from human to human and, further on, facilitates the exposure of a new form of inhabiting and co-habiting. In a dense mix of small, affordable housing units, the whole new housing programme is organised around the triangle – old people, students and young families with children.
In Haydn’s town, the metaphor of Philemon and Baucis’ hospitality speaks of the relation from human to human and, further on, facilitates the exposure of a new form of inhabiting and co-habiting. In a dense mix of small, affordable housing units, the whole new housing programme is organised around the triangle – old people, students and young families with children.





PROJECT TEAM:
Architects
Andrei Șerbescu
Adrian Untaru
Bogdan Brădățeanu
Irina Băncescu
Sebastian Șerban
Architects
Andrei Șerbescu
Adrian Untaru
Bogdan Brădățeanu
Irina Băncescu
Sebastian Șerban
Copyright © adnba 2003-2025 | Terms and Conditions
Facebook, Instagram, LinkedIn
